Kiralık 100m2 Boş Dükkan Atölye - Metroya 600mt - Maslak Atatürk Oto Sanayi
Kiralık
İstanbul | Sarıyer | Maslak Mh.
65.000 ₺
R-251003-040
Mülkün temel özellikleri
Mülkün konumu
Maslak, 26. Sk. No:1046, 34485 Sarıyer/İstanbul, Türkiye
Tipi:
Kullanım şekli:
Ticari
Dükkan & Mağaza, Atölye
Aidat:
Depozito:
1000 ₺
65.000 ₺ (1 Kira)
Bina yaşı:
Yapım yılı:
Site adı:
İnşaatı yapan:
İmar düzeni:
1990
35
Maslak Atatürk Oto Sanayi
*Bilinmiyor
Tapu / İmar:
Müstakil Tapulu
Oda sayısı:
Toplam kat:
Bulunduğu kat:
2
3 bölüm
2
/
En üst kat, Garaj / Dükkan Üstü
Brüt metrekare:
Net metrekare:
Net süpürülebilir alan:
100 m²
m²
100 m²
Açıklama
Mülk sahibi notları ve şartları
Maslak Atatürk Oto Sanayi Sitesi 2. kısım’da, 100m² kullanım alanı olan,
İster dükkan ister atölye olarak kullanabileceğiniz mülkümüz yeni kiracısını arıyor!
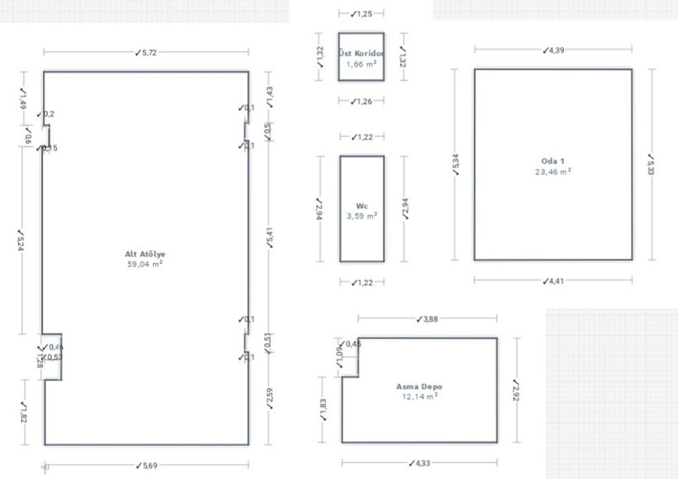
Toplam Kullanım alanı: 100 m²
Giriş kat dükkan / atölye alanı ( 59 m²)
Asma kat ofis odası( 24 m²)
Asma depo alanı ( 12 m²)
Wc ( 3 m²)
Üst kat Koridor (2 m² )
* Tüm duvarlar lazer metre ile tek tek ölçülerek, mekanın ön plan şeması ve lazer ölçüm raporu hazırlanmıştır. Tüm ölçümler sizlere A4 baskı ve PDF formatında dijital olarak teslim edilmektedir.
Taşınmazın Özellikleri:
İstanbul ve Türkiye'nin en büyük sanayi sitesinde (* wikipedia)
Sanayi sitesinin ana caddelerinden birini gören bir cephesi bulunmaktadır, tabela değeri taşımaktadır.
Galeri boşluklarının maksimum tavan yüksekliği: 5.17-4.47m’dir. (V Strüktür tavan)
Giriş katta asma katın altında kalan alanın tavan yüksekliği 2,38m
Çift cepheli aydınlık dükkan
Elektrik, su altyapısı bulunmaktadır fakat kapalıdır.
Kendi içinde tuvalet lavabosu mevcuttur.
Ön kapımız tamamen açılabilmektedir.
Araçla ulaşım mümkün ancak cadde seviyesinden değil, otopark benzeri sarmal bir rampa ile çıkılmaktadır. Bu sebeple kısmen küçük araçlar çıkabilir.
Dükkanımız, tadilat ister bir durumdadır fakat bölgedeki genel “hava parası / devir parası” taleplerinin aksine mülk sahibinin sizden ekstra bir para talebi yoktur.
Tek şartımız, kiracının kendi tadilatını karşılaması beklenmektedir.
1 Kira depozito istenmektedir.
Yıllık peşin ödemede kira tutarında indirim yapılacaktır.
Bölgedeki benzer mülklerin kira seviyelerine göre avantajlı konumdadır. Hem aylık masrafı hem de giriş maliyeti açısından uygun fiyatlı, ayrıca dilediğiniz tadilatı yapabileceğiniz bir dükkan sunuyoruz.
Tadilat sonrası kullanabilecek örnek potansiyel meslekler:
Otomotiv parça tamir atölyeleri
Otomotiv parça depoları
Farklı depolama hizmetleri
CNC, marangozluk, metal işleme atölyeleri
Beyaz eşya tamir atölyesi
Elektronik cihaz tamir atölyesi
Lokanta
Plot baskı, tabela, lazer kesim gibi matbaa atölyeleri
Mimari maket atölyesi
Fotoğraf - Dijital ajans stüdyosu
Lokasyon ve mesafeler:
Oto sanayi sitesinin merkez bir lokasyonunda bulunmaktadır.
Metro M2 hattına 600 metre (9 dakika) mesafededir.İstanbul Metrosu'nun M2 hattı 2009 yılında Atatürk Oto Sanayi Sitesi'ne kadar uzatılmıştır.
Maslak Büyükdere caddesinin hemen yanındadır.
İstanbul Teknik Üniversitesi Ayazağa kampüsü ve Işık üniversitesi maslak kampüsüne ve İstinye Alışveriş merkezine çok yakındır. (2 km çap içerisinde)
DETAYLAR VE RANDEVU İÇİN
TEK YETKİLİ OFİS VE DANIŞMAN:
RE/MAX PİRAMİT ACIBADEM
ANIL KAPLAN
(0530) 519 97 37
Profesyonel Gayrimenkul Danışmanı & Yüksek Mimar
Taşınmaz ticareti yetki no: 3407786-040 (SEVİYE 5)
ANIL KAPLAN GAYRİMENKUL DANIŞMANLIK
(Tüm gayrimenkul danışmanlarının, 21/9/2006 tarihli ve 5544 sayılı Mesleki Yeterlilik Kurumu Kanunu’nun 22. maddesi çerçevesinde mesleki yeterlilik belgesine sahip olması şarttır. Gayrimenkul danışmanlarının, sözleşme kullanmaları T.S 11816 standartlarının 1.1.1 maddesi gereği zorunlu kılınmıştır. Bu nedenle tüm gayrimenkul sunumları yer gösterme formu imzalatılarak yapılmaktadır.)
Danışmanın notları
Ölçüler ve adetler
Salon :
Oda 1:
Oda 2:
Oda 3:
Mutfak :
Banyo Wc 1:
Banyo Wc 2:
Balkon ve teraslar:
Antre:
Koridorlar:
Diğer alanlar:
59 m²
24 m²
m²
m²
m²
4 m²
m²
m²
m²
2 m²
m²
Banyo / WC sayısı:
Balkon sayısı:
Asansör sayısı:
Buzdolabı genişliği:
1
m
3+1 üzeri odalar:
Salon 2:
Oda 4:
Oda 5:
Mutfak 2:
Giyinme odaları:
- m²
- m²
- m²
- m²
- m²
Yükseklikler:
Genel kat yüksekliği:
Banyo kat yüksekliği:
Deniz seviyesi:
m
m
+ m
Otopark imkanları:
Kapalı otopark araç kapasitesi:
Açık otopark araç kapasitesi:
Kapalı moto.park kapasitesi:
Kullanım durumu:
Boş
Isıtma:
Odalar:
Mülkün iç durumu:
Banyo / WC:
Balkon / Teras:
Yok
Tadilat istiyor
Tadilat istiyor
Güvenlik:
Altyapı durumu:
Cephe:
Manzara:
Güneydoğu, Kuzeybatı
Şehir
Komşular:
Eşya detayları:
Eşyasız
Muhit:
Binanın imkanları:
Üst kata ulaşım:
Asansör yok
Üst kata ulaşım:
Sosyal donatı:
Sportif donatı:
Ticari alanlar:
Kamusal alanlar:
Donatı notları:
Yürünebilir toplu taşıma:
Metro, Minibüs, Otobüs, Taksi durağı, Özel Araç
Yakındaki yollar:
Büyükdere Caddesi
Yaşlı ve engelliye uygun:
Kronik problemler:
Video tanıtım
Mülkün kroki planı

Yetkili Gayrimenkul Danışmanı
ANIL KAPLAN
RE/MAX Piramit | Acıbadem
+90 (530) 519 97 37
+90 (216) 327 30 35
8 Ekim 2025 11:51:38
8 Ekim 2025 11:55:37
Belge No: 3407786
Diğer platform bağlantıları ve ilan kodları:
P04384481
1275506958

- henüz yayınlanmadı --
- henüz yayınlanmadı - // WhatsApp Business Katalog



























.jpeg)
